SF6 Circuit Breaker Applications in Substations
2026-04-23 16:07:45
It is very important for substations to have SF6 Circuit Breakers for safety reasons. To stop fault currents and keep the grid stable across transmission and distribution networks, they use SF6 gas. Because they are small, good at stopping arcs, and have been used for a long time, they are essential for utility companies, industrial facilities, and system integrators who want to increase uptime while lowering maintenance needs. Procurement teams can pick the best technologies for their voltage classes and work environments if they know how these technologies are used.
![]() |
![]() |
![]() |
![]() |
Understanding SF6 Circuit Breakers in Substations
What Makes SF6 Gas Ideal for Arc Interruption?
That is about 2.5 times stronger than air at normal pressure, which is SF6. This means that electric arcs can be put out quickly if something goes wrong. SF6 molecules quickly grab free electrons when the contacts inside the breaker chamber separate. The arc can't form again, and the circuit can safely open. Because the gas is chemically stable, it won't catch fire or rust even after decades of use. This keeps the insides from oxidizing. SF6 quickly gets rid of heat because it is a good thermal conductor. This means that mechanical parts are less stressed when they are switched on and off over and over again.
Common Breaker Configurations in Substation Environments
When the tank is dead, the interrupter unit is housed in a metal enclosure that is grounded to ground. This makes it easier to coordinate the insulation and lowers the chance of flashovers from the outside. When the tank is live, the interrupting chamber is set up on insulating columns that are at line potential. This is helpful when there isn't much room and vertical installations are needed for high voltage. Voltages can be anywhere from 72.5kV to 800kV, and currents can be anywhere from 1,250A to 5,000A, depending on the size of the conductors and how they are cooled. Because of things like the site's seismic needs, the amount of pollution, and the space in the substation yard, you should use either a dead tank or a live tank.
Technical Parameters That Matter for Procurement Teams
When choosing a device, rated voltage and rated normal current are important, but interrupting capacity—that is, the largest fault current that the SF6 Circuit Breaker can safely clear—is often what makes it suitable for important tasks. These days, SF6 Circuit Breakers can handle up to 63kA of short-circuit current, which is enough for grids in cities with lots of people using them. SF6 Circuit Breaker ratings (E1, E2) show how well it can stop a certain amount of short-circuit current without needing major repairs. Types of mechanical endurance (M1 for 2,000 operations, M2 for 10,000 operations) help with planning maintenance. People who buy new equipment must also make sure it meets the standards of IEC 62271-100 and IEEE C37.04 to ensure interoperability with existing substation equipment.
Key Application Areas and Benefits of SF6 Circuit Breakers in Substations
Where Sulfur Hexafluoride Breakers Excel in the Grid?
SF6 circuit breakers are widely used in high-voltage transmission substations (230kV and above) where large power flows must be reliably controlled between generation and load centers. They are essential in grid nodes supplying cities, data centers, and industrial zones, and in voltage transformation substations such as 138kV to 34.5kV systems. Their compact gas-insulated switchgear (GIS) design reduces space use by up to 70%, making them ideal for dense urban installations. They also provide fast fault interruption in renewable energy integration, ensuring stable grid synchronization for solar and wind systems.
Addressing Environmental Concerns Responsibly
SF6 is an extremely potent greenhouse gas with a global warming potential 23,500 times higher than CO2 over 100 years, requiring strict environmental management. Utilities use leak detection systems, infrared imaging, and acoustic monitoring to prevent emissions, while maintenance follows EPA and international handling standards. Gas recovery and recycling are mandatory at end-of-life to minimize environmental impact. Alternative technologies are emerging, but SF6 remains dominant in high-voltage applications where dielectric strength and reliability are critical and cannot yet be fully replaced.
Comparing SF6 Circuit Breakers with Other Technologies
Performance Differences Across Switching Technologies
SF6 breakers outperform vacuum, air-blast, and oil breakers in high-voltage transmission due to superior arc quenching and dielectric recovery. Vacuum breakers are limited to medium voltage levels, while air-blast systems are outdated due to high energy use and maintenance demands. Oil breakers face environmental and fire risks. SF6 units offer compact size, long service life, and strong performance under extreme conditions. Although initial cost is higher, lifecycle cost is lower due to reduced maintenance and higher operational reliability.
Evaluating Leading Manufacturers and Standards Compliance
When evaluating leading manufacturers of SF6 Circuit Breaker solutions, technical compliance and proven field performance are critical. Xi’an Xikai Medium & Low Voltage Electric Co., Ltd. stands out with products that meet national and industry standards while delivering internationally advanced performance. With patented technologies and reliable operation even at altitudes up to 4,000 meters, Xi’an Xikai ensures stable, customized substation solutions across diverse industrial and power grid applications.
Procurement Insights: Buying and Maintenance Tips for SF6 Circuit Breakers
Technical Evaluation Metrics for Informed Purchasing Decisions
ANSI/IEEE C62.22 specifies that rated voltage must match system nominal voltage with proper insulation coordination margins. SF6 Circuit Breakers, such as 145kV or 150kV models are commonly used for 138kV substations to ensure overvoltage protection. Rated current should exceed maximum load by at least 20% to accommodate future growth and harmonic heating. Interrupting capacity must match or exceed calculated fault current with safety margins. Insulation performance, including BIL ratings, ensures reliability under lightning and switching surge conditions in transmission networks.
Navigating 2026 Pricing Trends and Commercial Terms
Supply chain constraints in copper, porcelain, and electronic components have increased SF6 Circuit Breaker costs across voltage classes. Bulk purchasing above five units typically qualifies for 8–15% tiered discounts. Standard warranty periods are 24 months from commissioning or 30 months from shipment, with extensions for critical applications. Lead times range from 16–24 weeks, extending to 32 weeks for customized designs. Buyers should require FAT protocols covering mechanical operation, dielectric testing, and gas leakage verification before shipment confirmation and final payment stages.
Maintenance Checklists and Troubleshooting Protocols
SF6 Circuit Breakers require regular gas pressure monitoring, typically between 5–7 bar absolute every six months. Control circuit inspections ensure secure connections and proper lubrication of operating mechanisms. Annual thermographic surveys detect rising contact resistance early using infrared imaging. Micro-ohm resistance values should remain below 100 microohms per pole; higher readings indicate wear or contamination. Leak detection tests using approved fluids verify seal integrity. Gas decomposition signs such as discoloration or powder formation require full gas replacement and certified post-repair testing for reliability assurance.
Enhancing Substation Performance with SF6 Circuit Breakers
Integrating Smart Monitoring for Predictive Maintenance
Modern SF6 Circuit Breakers use sensors to monitor gas density, contact position, operating force, and vibration patterns. These data streams feed into SCADA systems, giving operators real-time visibility of asset health across substations. Machine learning algorithms detect early degradation signs such as gas pressure decline or longer operating cycles and trigger maintenance orders before failures occur. This shift from time-based to condition-based maintenance reduces unnecessary inspections, improves reliability, and helps utilities prevent costly outages while optimizing long-term asset performance efficiently.
Real-World Case Study: Upgrading a Legacy Substation
A 230kV substation replaced aging oil circuit breakers installed in 1978, which experienced frequent failures and 12-hour outages. Six units were upgraded to SF6 Circuit Breakers rated 245kV, 40kA, and 3,150A. After installation, unplanned outages were eliminated for three years, and maintenance time dropped by 65%. Compact SF6 design freed space for an additional transformer bay, delaying costly expansion. The $2.1 million upgrade avoided a $3.8 million new substation build while saving $400,000 annually in outage-related losses and improving grid reliability.
Future-Proofing Strategies with Emerging Technologies
Hybrid circuit breakers combining SF6 and vacuum interrupters reduce gas usage while maintaining high-voltage performance. Vacuum chambers handle low-duty switching, cutting SF6 volume by nearly half. Alternative fluoronitrile gas mixtures with significantly lower global warming potential are under development but remain in pilot use. Modern SF6 Circuit Breakers increasingly support IEC 61850 communication standards for digital substations. Ethernet-enabled designs integrate with process bus architectures, improving cybersecurity and enabling smart grid functions such as renewable integration, EV charging support, and dynamic load balancing control systems.
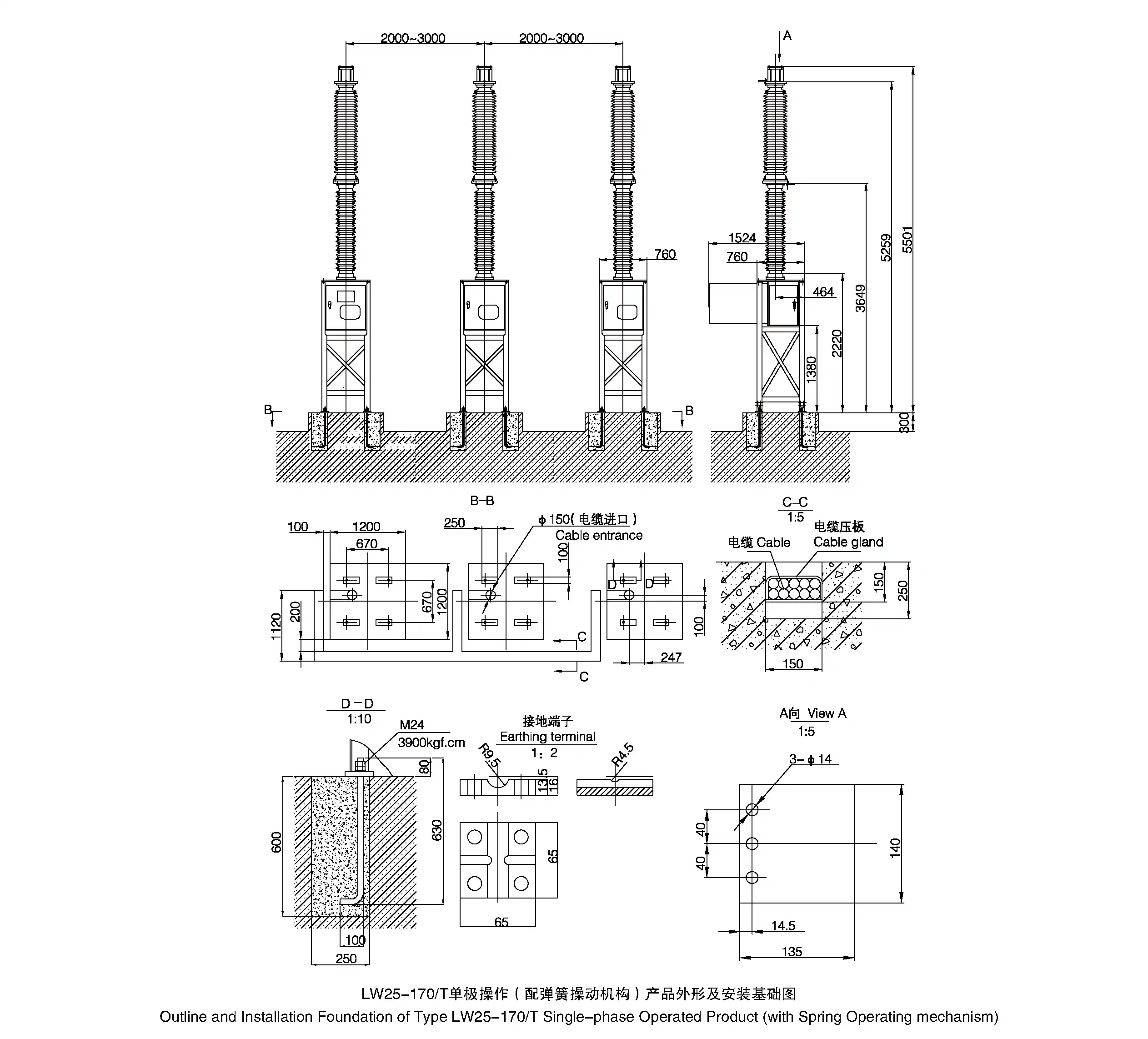
LW25 Outdoor Porcelain Type SF6 Circuit Breaker: Proven Performance for Demanding Applications
The LW25 series from Xi'an Xikai is strong high-voltage protection made for transmission networks with 126kV to 145kV. The porcelain case can handle big temperature changes from -30°C to 50°C. Because of this, the SF6 Circuit Breaker works great near the ocean, where the air is salty, and in the desert, where dust can get in. In utility and industrial substations that need different conductor sizes, rated normal currents of 2,000A, 3,150A, and 4,000A can be used.
![]() |
|
With three different ways to run the business, you can choose the best infrastructure for each site. When the spring mechanism closes, electric motors charge the closing springs, and self-charging opening springs engage automatically when the mechanism closes. This set-up adds the least amount of extra power. Things can be moved reliably with hydraulic fluid pressure when disc springs are used to store energy instead of nitrogen gas. This means that nitrogen bottles are not needed for maintenance. To open and close, pneumatic mechanisms use both compressed air and a spring, suitable for substations that already have instrument air systems.
Because it is modular, maintenance work can be done on different phases without cutting power to phases next to them. This cuts down on times when service is interrupted and the cost of labor. There are triple-break porcelain interrupters that make sure the dielectric gets back to normal quickly. When the frequency is set to 50Hz, the arc interruption is finished in two cycles. You can check gas pressure, contact wear indicators, and cumulative operation counters in real time when you connect them to SCADA systems. Since it has these qualities, the LW25 is a reliable choice for power plants and utilities.
Because our factory is ISO 9001-certified, they make sure that everything fits together perfectly by robotically welding gas compartments and letting important fasteners handle their own torque. Each unit goes through 2,000 mechanical operations during factory acceptance testing to make sure it works right before it is sent out. To make sure it can cut off in case of a fault, short-circuit testing to 40kA is done, and salt-fog corrosion trials confirm housing durability. Traceability down to the component level through serialized quality records supports root cause analysis and warranty administration throughout the SF6 Circuit Breaker's service life.
Conclusion
That being said, the safest way to keep high-voltage substations safe is still with SF6 Circuit Breakers. They work great for transmission and distribution tasks that need to take up little space and require little upkeep. Their history in power grids, factories, and renewable energy installations shows that they are useful because they cut down on downtime and make service intervals longer. People are looking for other insulating gases that are better for the environment. At the same time, smart monitoring tools and better gas management systems keep making SF6 Circuit Breaker technology better. So long as the procurement teams have technical evaluation criteria and lifecycle cost models, they can be sure that these SF6 Circuit Breakers will protect important electrical infrastructure for many years.

FAQ
1. What safety precautions are essential during SF6 breaker installation?
When installing an SF6 Circuit Breaker, what safety steps must be taken? When technicians work with gases, they need to use calibrated tools and the right safety gear, like gloves that are rated for the voltage class. Lockout-tagout procedures should be required for work permits so that electricity doesn't get turned on by accident during installation. In gas filling operations, there needs to be ventilation so that oxygen doesn't escape from small spaces. SF6 levels are checked by portable gas detectors. People who are certified by the EPA should be the only ones to charge and recover gas, using approved recovery carts meeting regulatory purity standards.
2. How long do SF6 circuit breakers typically last in transmission substations?
SF6 Circuit Breakers are often used in transmission substations. How long do they usually last? It is meant to last between 30 and 40 years if you take care of it and load it correctly. Every 15 to 20 years, you might need to replace some mechanical parts, like mechanisms that make things work. Gas-filled compartments often remain sealed throughout the SF6 Circuit Breaker's service life, as long as the leak rate stays safe. Environmental factors can all make insulators age faster, making periodic condition assessments critical for maximizing asset longevity.
3. What regulations govern SF6 gas usage in electrical equipment?
How can SF6 gas be used in electrical equipment? What are the rules? The Clean Air Act tells the EPA how to control SF6 emissions and says that power plants that store more than 17,600 pounds of gas must report them every year. It is required by the Air Resources Board of California that gas be recycled during maintenance and that leak rates be kept to a lower level. There are goals for reducing and handling set by international agreements such as the Kyoto Protocol and Europe's F-Gas Regulation 517/2014. Operators must maintain records documenting gas acquisitions and leak repairs to demonstrate regulatory compliance.
Partner with Xi'an Xikai for Reliable Substation Solutions
The company Xi'an Xikai Medium & Low Voltage Electric Co., Ltd. has been an engineering firm for many years. They work on big power infrastructure projects for factories, utilities, and renewable energy installations. We can meet all of your complicated electrical distribution needs because we have many products, such as high and low-voltage switchgear, SF6 Circuit Breakers, vacuum circuit breakers, instrument transformers, and substations that are already built. The LW25 outdoor porcelain SF6 Circuit Breaker is proof of our commitment to quality, backed by ISO 9001 and ISO 14001 certifications alongside 20+ patented technologies.
Our technical support helps procurement teams at every stage of a project, from going over the first set of specs to putting the system into service and making plans for long-term upkeep. Whether you're upgrading old substations or building brand-new ones, we can change the way they work, the current ratings, and the seismic qualification tests to meet your needs. Buying more than one unit is a cheap way to update a lot of the power grid thanks to volume pricing programs that set lead times to work with project schedules.
When things go wrong in the field, our global service network helps fix problems quickly and send out spare parts, so there is less downtime. We keep a lot of spare parts, like mechanical parts, electronic control modules, and replacement contacts, in stock because our company has made SF6 Circuit Breakers for a long time. Reach out to our technical team at serina@xaxd-electric.com, amber@xaxd-electric.com, or luna@xaxd-electric.com to discuss your specific requirements and explore how our solutions can enhance your grid reliability while controlling the total cost of ownership.
References
1. IEEE Power & Energy Society, "IEEE Guide for the Application of Gas-Insulated Substations 1 kV to 52 kV," IEEE Std C37.122.1, 2019.
2. International Electrotechnical Commission, "High-voltage switchgear and controlgear – Part 100: Alternating current circuit-breakers," IEC 62271-100 Edition 3.0, 2021.
3. CIGRE Working Group A3.22, "Technical Requirements for Substation Equipment Exceeding 800 kV AC," CIGRE Technical Brochure 692, 2017.
4. National Institute of Standards and Technology, "Thermophysical Properties of Sulfur Hexafluoride (SF6) and Applications in High-Voltage Equipment," NIST Technical Note 1429, 2018.
5. Electric Power Research Institute, "SF6 Gas Management Guidelines for Electric Utilities," EPRI Report 3002015895, 2020.
6. North American Electric Reliability Corporation, "Transmission Equipment Performance and Reliability Standards," NERC Standard PRC-005-6, 2022.





