GW5 High Voltage Disconnect Switch
2.Stainless steel transmission system (pins, bushings, joints)
3.Optimized Conductivity
4.Externally compressed stainless contact springs (rust-proof, stable force)
5.Aluminum alloy profile
6.High strength, thermal dissipation, maintenance-free
7.Bent copper plates (easy replacement)
8.Minimal friction travel during switching
9.Optional installation on both base sides
10.rated voltage:72.5-126KV
11.rated current:max 2000A
- Fast Delievery
- Quality Assurance
- 24/7 Customer Service
Product Introduction
1.GW5 High Voltage Disconnect Switch: Reliable Power Grid Protection
When you need a durable, high-performance solution for power grid safety, the GW5 High Voltage Disconnect Switch delivers unmatched reliability. Designed for outdoor use in demanding environments, this switch combines hot-dip galvanized steel, stainless steel transmission systems, and advanced arc control to ensure stable operation at voltages up to 126kV and currents reaching 2000A. Trusted by utilities in 50+ countries, our GW5 series meets IEC 62271-102 and IEEE C37.32 standards, offering a 30+ year lifespan even in extreme temperatures (-40°C to +85°C).

2.Technical Specifications
- Rated Voltage: 72.5kV–126kV
- Max Current: 2000A
- Materials: Hot-dip galvanized steel, aluminum alloy, rust-proof stainless steel contacts
- Contact Resistance: <75μΩ
- Certifications: IEC 62271-102, IEEE C37.32, CE, UL 508, GOST-R
- Design: Optional dual-side installation, bent copper plates for easy maintenance

-
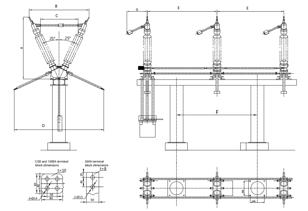
Model Size A B C D E F G Operation Mode GW5-72.5 1244 1240 770 2110 1600 2000 420 Three-phase mechanical linkage GW5-126 1653 1480 1120 2912 2000 2800 510
3.Key Features & Advantages
1. Built to Withstand Extreme Conditions
The product uses hot-dip galvanized components and sealed transmission mechanisms to resist corrosion in coastal or high-humidity areas. Its aluminum alloy profile enhances heat dissipation, while stainless steel contact springs maintain stable conductivity during frequent operations.
2. Maintenance-Free Operation
With a stainless steel pin/bushing system and externally compressed contact springs, the GW5 requires minimal upkeep. The horizontal pantograph design reduces friction during switching, extending service intervals by 40% compared to traditional models.
3. Customizable for Your Grid Needs
Choose from Arctic variants (-60°C operation), compact models for urban substations, or IoT-enabled versions with predictive maintenance sensors. All GW5 switches support modular retrofitting into existing infrastructure.
4.Where It's Used?
Be used in a wide range of industries.

Industrial Plants
Eliminate power factor penalties in CNC machines and assembly lines while handling surge currents up to 100x rated capacity.

Substation
Stabilizes substation voltage against harmonics and intermittent generation from renewable inverters.

Commercial Buildings
Retrofit aging systems in hospitals or malls with silent (<45dB), flame-retardant capacitors that meet NFPA 70 fire codes.
5.How It Works?
The GW5’s dual-break isolation system creates two visible gaps when open, providing clear safety confirmation. Its pantograph mechanism moves horizontally to minimize arcing, while optional grounding switches interlock with main blades to prevent accidental activation during maintenance.
6.Precision Manufacturing & Testing
Every GW5 High Voltage Disconnect Switch undergoes:
- 48-Hour Aging Tests: Simulate 20 years of mechanical operations.
- Dielectric Testing: 230kV power frequency withstand voltage for 1 minute.
- Material Traceability: Full documentation from raw materials to final assembly.
7.Why Choose Us?
- 40+ Years of Expertise: 200,000+ GW5 units deployed globally since 1983.
- ISO 9001-Certified Production: 100% quality inspection at each manufacturing stage.
- 24/7 Global Support: Multilingual engineers provide emergency response within 12 hours.
- Award-Winning Innovation: Recognized as a National High-Tech Enterprise with 15+ patents.



8.FAQs
1. What standards does the GW5 comply with?
It meets IEC 62271-102 for disconnectors and IEEE C37.32 for switchgear design, ensuring global grid compatibility.
2. How often does the GW5 require maintenance?
Routine inspections every 5 years are recommended. Sealed mechanisms and corrosion-resistant materials reduce hands-on upkeep.
3. Can it operate in icy conditions?
Yes. The GW5-Arctic variant includes heated mechanisms to prevent ice buildup on contacts.
4. Is retrofitting possible without structural changes?
Absolutely. The GW5-Compact model fits 30% smaller spaces, ideal for upgrading aging substations.
5. What coatings protect against corrosion?
Hot-dip galvanization (85μm thickness) and stainless steel transmission parts ensure 30+ years in coastal environments.
9.Contact Us
Email our engineers at xaxd_electric@163.com for GW5 specifications, pricing, or project support.
Optimize your grid’s reliability with the GW5 High Voltage Disconnect Switch — where innovation meets decades of field-proven performance.
10.Factory Show


11.Equipment Display

12.Application Cases
State Grid systems, power engineering, steel and metallurgy, petrochemicals, rail transportation, energy and water conservancy, construction, environmental protection, and renewable energy sectors
13.Team and Exhibition

Send Inquiry
