GW4 High Voltage Disconnect Switch
2.Stainless steel transmission system (pins, bushings, joints, bearings)
3.Flexible busbar connections
4.Externally compressed stainless contact springs (anti-rust, stable pressure)
5.Aluminum alloy profile
6.Enhanced heat dissipation, maintenance-free
7.Bent copper plates (easy maintenance)
8.Short friction travel during operation
9.Grading rings + shields at contacts
10.Optimized E-field distribution, reduced RF interference
11.Optional installation on both base sides
12.rated voltage:40.5-252kv
13.rated current:max 6300A
- Fast Delievery
- Quality Assurance
- 24/7 Customer Service
Product Introduction
1.GW4 High Voltage Disconnect Switch: Reliable Power Grid Protection
When you need a robust solution for high-voltage transmission and distribution systems, the GW4 High Voltage Disconnect Switch stands out as a trusted choice. Designed for voltages ranging from 40.5kV to 252kV and currents up to 6300A, this disconnect switch ensures safe isolation, minimal downtime, and long-term performance in demanding environments.

2.Technical Specifications
- Rated Voltage: 40.5kV – 252kV
- Rated Current: Up to 6300A
- Material: Hot-dip galvanized steel, stainless steel transmission parts, aluminum alloy profiles
- Operating Temperature: -40°C to +85°C
- Certifications: IEC 62271-102, IEEE C37.32, ISO 9001, CE, GB/T
-




-
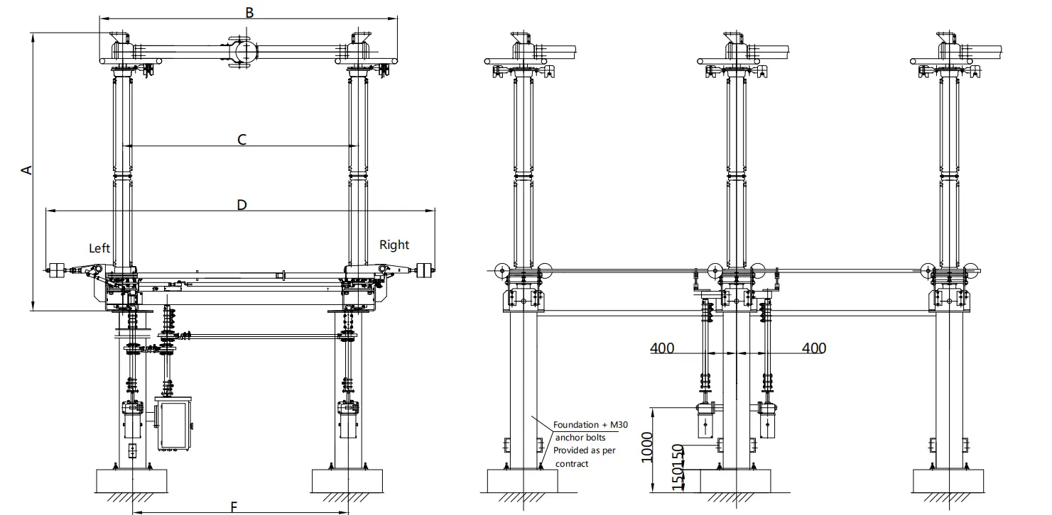
ModelSize A B C D E F G Remarks Operation Mode GW4-40.5 1257 1140 730 1100 434 6000A GW4-40.5 846 930 635 930 1200 390 2000A GW4-72.5 1258 1025 880 2040 1600 2000 480 Three-phase mechanical linkage GW4-126 1770 1675 1300 1875 2000 3100 690 Horizontal linkage GW4-145 1970 2050 1675 2300 2200 3500 865 GW4A-252 3120 3350 2650 4400 4000 2430 1435
3.Key Features & Advantages
1. Engineered for Durability
- Corrosion Resistance: Hot-dip galvanized steel components and stainless steel transmission systems prevent rust, even in coastal or high-humidity regions.
- Low Maintenance: Flexible busbar connections and self-cleaning grading rings reduce wear, while sealed bearings eliminate frequent lubrication.
2. Enhanced Electrical Performance
- Optimized Contact Design: Externally compressed stainless contact springs ensure stable pressure and minimal arcing.
- Reduced RF Interference: Integrated shields and grading rings distribute electric fields evenly, improving safety for nearby equipment.
3. Smart Installation & Adaptability
- Dual-Side Mounting: Install on either side of the base for flexible grid configurations.
- Modular Design: Pre-assembled kits simplify deployment in remote or complex sites.
4. Built for Extreme Conditions
- Tested to withstand hurricanes, ice loads, and rapid temperature shifts.
4.Applications
Be used in a wide range of industries.

Industrial Plants
Eliminate power factor penalties in CNC machines and assembly lines while handling surge currents up to 100x rated capacity.

Substation
Stabilizes substation voltage against harmonics and intermittent generation from renewable inverters.

Commercial Buildings
Retrofit aging systems in hospitals or malls with silent (<45dB), flame-retardant capacitors that meet NFPA 70 fire codes.
5.Design & Construction
The GW4 High Voltage Disconnect Switch uses bent copper plates for easy maintenance and aluminum alloy profiles for heat dissipation. Its short friction travel reduces mechanical stress during operation, while silicone-coated insulators (optional) enhance performance in polluted or desert environments.
6.Manufacturing & Quality Assurance
- Precision Engineering: CNC-machined parts ensure consistent alignment and electrical contact.
- Rigorous Testing: Dielectric, mechanical endurance, and thermal tests validate compliance with IEC and IEEE standards.
- Eco-Friendly Production: Processes align with RoHS and REACH directives.
7.Why Choose Us?
- 20+ Years of Expertise: Recognized as a “High-Tech Enterprise” in China’s power sector.
- End-to-End Support: From custom designs (e.g., smart sensors for grid monitoring) to 24/7 technical assistance.
- Global Compliance: Products meet IEC, IEEE, KEMA, and regional certifications.
- Sustainable Solutions: Future-ready designs support smart grid integration.



8.FAQs
Q: How does the GW4 handle extreme temperatures?
A: Its stainless steel and aluminum alloy construction ensures stable operation from -40°C to +85°C.
Q: Can it integrate with smart grid systems?
A: Yes! Optional IoT sensors enable real-time monitoring via Modbus or IEC 61850 protocols.
Q: What’s the lead time for bulk orders?
A: Standard configurations ship within 8–10 weeks. Contact us for expedited options.
9.Contact Us
Email: xaxd_electric@163.com
Need a quote or technical specs GW4 High Voltage Disconnect Switch? Reach out today – let’s power your project with reliability!
10.Factory Show


11.Equipment Display

12.Application Cases
State Grid systems, power engineering, steel and metallurgy, petrochemicals, rail transportation, energy and water conservancy, construction, environmental protection, and renewable energy sectors
13.Team and Exhibition

Send Inquiry
